Plytų g. Klaipėda

Objekto tipas Prekybinės, biuro patalpos
Sandorio tipas Nuomai
Paskirtis
  • Administracinė
  • Paslaugų
  • Kita
Plotas m2 39,35
Aukštas 1
Aukštų sk. 1
Pastato tipas Mūrinis
Šildymas
  • Centrinis
Kaina €/m2 10.17
Skelbimo ID 4198
Kaina400 €

Išnuomojamos medicininės paskirties patalpos Klaipėdos centre

Išnuomojamos 39,35 m² medicininės paskirties patalpos Plytų g. 1, Klaipėdoje, šalia medicinos centro LORNA.
Patalpų lokacija – puiki: miesto centras, patogus susisiekimas tiek pėstiesiems, tiek automobiliu. Šalia yra autobusų sustojimo stotelė.

Privalumai:

  • Atskiras įėjimas;
  • Įrengtas kondicionierius;
  • Patalpos su baldais;
  • Yra automobilių stovėjimo aikštelė klientams ir darbuotojams;
  • Signalizacija.

Patalpos tinka įvairioms medicininėms ar grožio paslaugoms teikti. Pasirašius nuomos sutartį, galima įsirengti pagal savo poreikius.

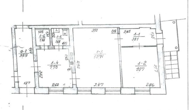
Patalpose yra san. mazgas, pagalbinė patalpa, kabinetai. Pridedame patalpų planą.

Kaina: 400 €/mėn + komunaliniai mokesčiai

???? Adresas: Plytų g. 1, Klaipėda
???? Plotas: 39,35 m²

Papildoma informacija apie skelbimą :
Metai: 2007
Įrengimas: įrengtas
Vanduo: Miesto vandentiekis
Ypatybės: Atskiras įėjimas; įėjimas iš gatvės; Elektra; Asfaltuotas privažiavimas; Galimybė keisti išplanavimą; Internetas
Papildoma įranga: Kondicionierius; Su baldais
Apsauga: Signalizacija

Panašūs objektai: