H. Manto g. Klaipėda

Objekto tipas Prekybinės, biuro patalpos
Sandorio tipas Nuomai
Paskirtis
  • Administracinė
  • Prekybos
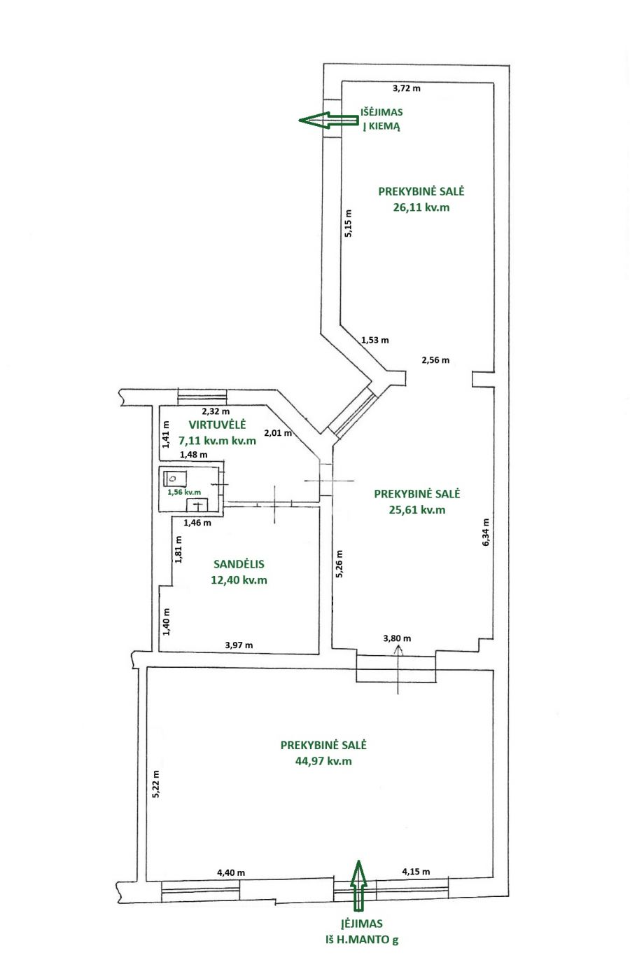
Plotas m2 117,76
Aukštas 1
Aukštų sk. 3
Pastato tipas Mūrinis
Šildymas
  • Centrinis
Kaina €/m2 14.01
Skelbimo ID 4193
Kaina1 650 €

Išnuomojamos 117,76 kv. m prekybinės patalpos pačioje Klaipėdos širdyje – prestižinėje ir reprezentatyvioje H. Manto gatvėje.

Tai vieta, kur kasdien pulsuoja miesto gyvenimas, o jūsų verslas gali tapti jo dalimi!

Patalpos yra pirmame aukšte, puikiai matomos nuo gatvės, su patogiu įėjimu tiesiai iš H. Manto g. – jūsų klientai jus lengvai pastebės ir ras.
Erdvios, šviesios patalpos suteikia daug galimybių įvairiai veiklai: prekybai, paslaugoms ar biurui.

Aplink koncentruojasi aktyvūs verslo ir paslaugų centrai, parduotuvės, biurai, valstybinės bei mokslo įstaigos. Dideli pėsčiųjų ir automobilių srautai garantuoja nuolatinį matomumą ir klientų srautą.

Jeigu ieškote vietos, kuri pabrėžtų jūsų verslo prestižą ir užtikrintų geriausią matomumą – ši vieta kaip tik jums!

Kaina 14 eur kv.m + PVM

Depozitas už 2 mėn.

Patalpos atsilaisvina nuo 2026 m vasario 1 d.

Papildoma informacija apie skelbimą :
Metai: 1903
Įrengimas: įrengtas
Ypatybės: Atskiras įėjimas; Asfaltuotas privažiavimas

Panašūs objektai: