Linažolių g. Grabiai

Objekto tipas Namas
Sandorio tipas Pardavimui
Kambarių sk. 3
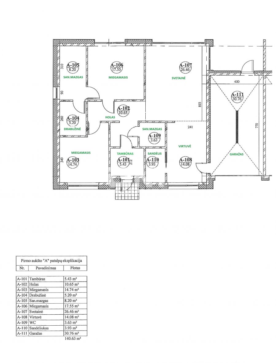
Plotas m2 140,63
Aukštų sk. 1
Pastato tipas Mūrinis
Sklypo plotas a 9,4
Kaina €/m2 1208.85
Skelbimo ID 4197
Kaina170 000 €

Parduodamas naujas namas netoli jūros – Grabių k., Linažolių g.

Parduodamas 140,63 kv. m ploto namas su 9,4 arų žemės sklypu ramioje ir patrauklioje gyvenvietėje Grabių kaime, vos keli kilometrai nuo Karklės ir jūros. Tai puiki vieta tiems, kurie nori mėgautis gamtos ramybe, tačiau nori likti netoli miesto patogumų.

Pagrindinė informacija:

  • Namas parduodamas su daline apdaila – puiki galimybė įsirengti pagal savo skonį;
  • Įrengtos juodgrindės;
  • Atvesti visi inžineriniai įvadai (elektra, vanduo, nuotekos);
  • Įrengtos vidaus pertvaros pagal projektą (arba pagal kliento poreikį);
  • Sumontuotos kokybiškos lauko durys ir automatiniai garažo vartai;
  • Pilnai atlikta fasado apdaila su apšiltinimu;
  • Kiemas išklotas trinkelėmis, įrengta segmentinė tvora ir vartai, sklypas išlygintas.

Privalumai:

  • Rami, naujų namų gyvenvietė – idealu šeimai;
  • Vos keli kilometrai iki Karklės ir jūros;
  • Patogus susisiekimas su Klaipėda;
  • Aplink tvarkinga ir saugi kaimynystė.

Tai puikus pasirinkimas norintiems suderinti ramų gyvenimą prie jūros ir patogų priėjimą prie miesto infrastruktūros.

Papildoma informacija apie skelbimą :
Metai: 2025
Tipas: namas (gyvenamasis)
Įrengimas: dalinė apdaila
Artimiausias vandens telkinys: jūra
Papildomos patalpos: Rūbinė; Garažas
Apsauga: Signalizacija

Panašūs objektai: